1979 Airport Drive, Campbell River
Campbell River West
Living at 1979 Airport Drive, Campbell River
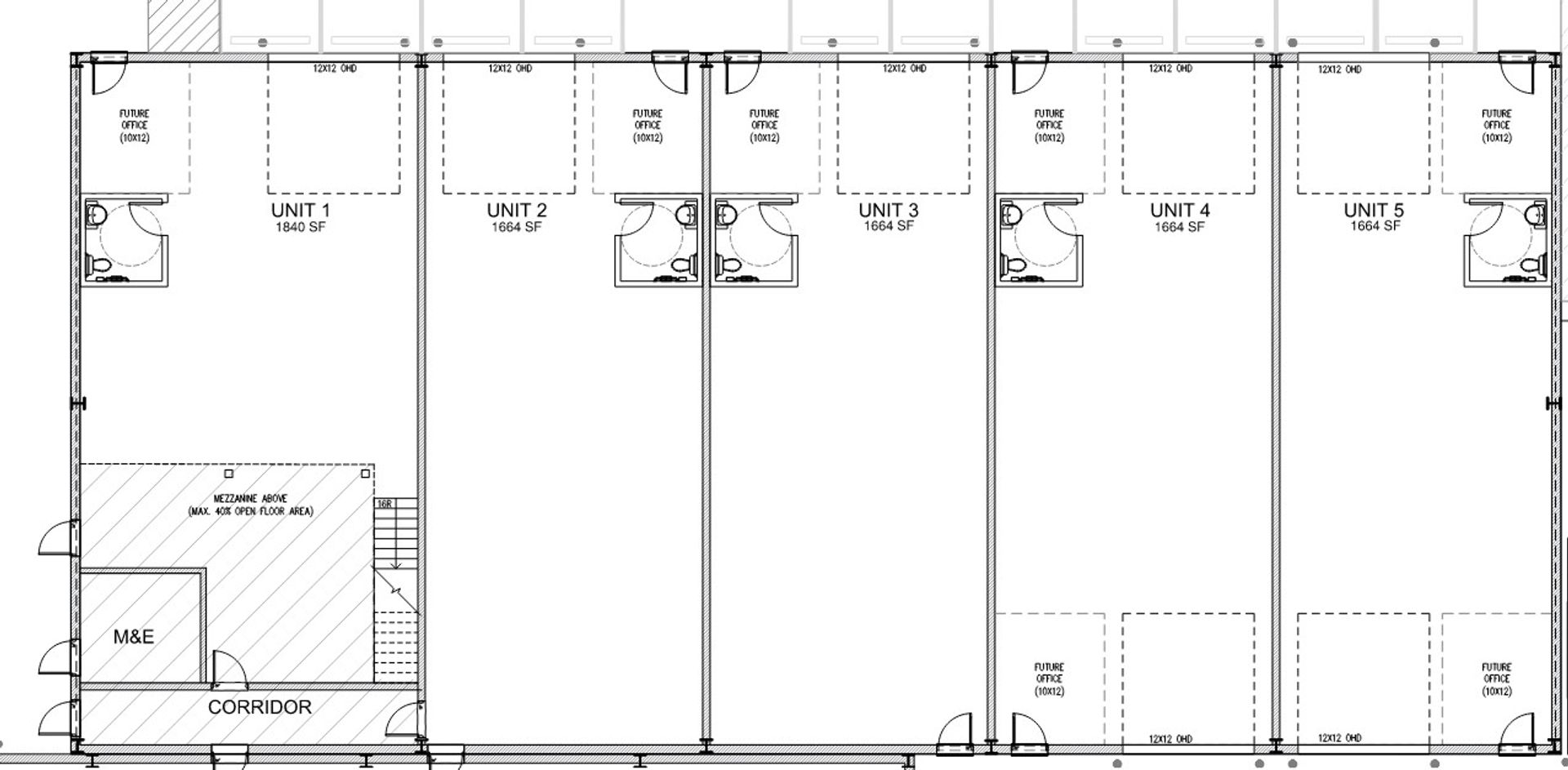
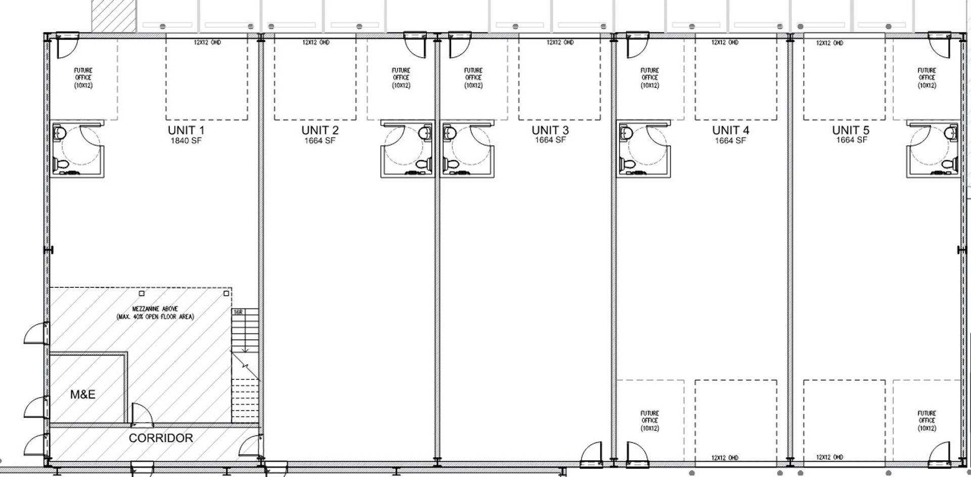
Crowne Pacific is excited to announce the upcoming development of a new Commercial Retail Unit (CRU) building, breaking ground in early 2026 on Airport Drive in Campbell River.
This thoughtfully designed building will offer over 14,000 square feet of leasable space, with the flexibility to accommodate a range of business needs. The current layout includes six individual units, starting at 1,664 square feet. Units can be combined or reconfigured to suit tenant requirements, offering customizable solutions for retail and commercial users.
Located in a A1-zoned area, the development is well-positioned for a wide variety of business types. Build-to-suit options are available to help tenants create the ideal space for their operations. Lease rates start at $16 per square foot.
For rental availability and inquiries, please contact Veyron Properties.
Development Features
Air Conditioning
Video Surveillance
7 Suites
Types of Units Available
Business
 
        Looking to Inquire about units in 1979 Airport Drive, Campbell River?
250.287.8120The Neighbourhood Around 1979 Airport Drive, Campbell River
Campbell River West
Explore amenities around this neighbourhood location as well as around the community.

 
                    
                